The Arlo - 4 Bedroom Agrihood Home Plan

A refined English Cottage estate designed for space, presence, and everyday elegance. With 3,775 square feet, dual main-level bedrooms, and expansive living areas, The Arlo brings timeless architecture into a modern, livable form.

Main Level

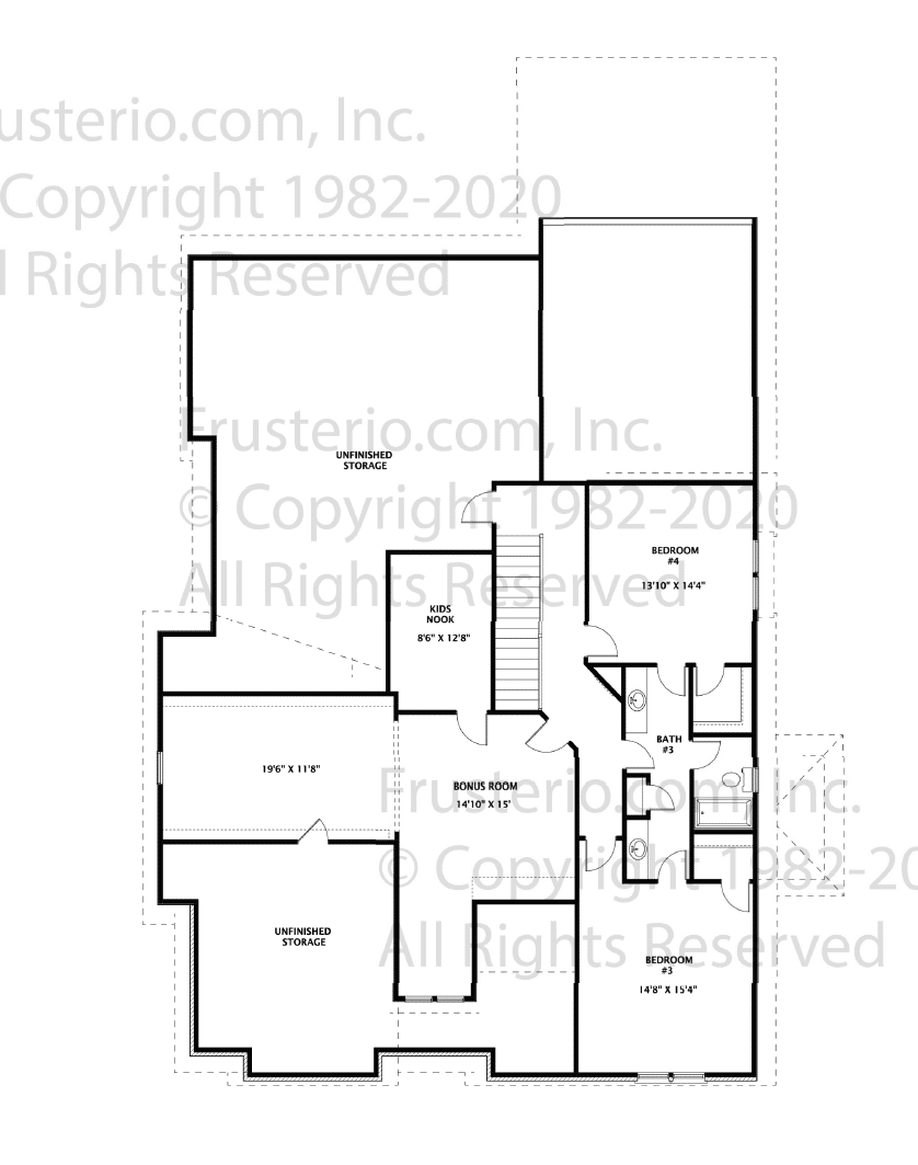
Second Level

A Home of Presence and Proportion

The Arlo is designed for those who value both scale and intention. Rooted in English Cottage architecture, this home carries a quiet sense of grandeur—where every space feels purposeful, and every detail supports a refined way of living.

The main level offers both a private primary suite and an additional bedroom, allowing for flexibility without compromising flow. Expansive living areas connect seamlessly, while the second level provides additional space for family, guests, or retreat.

Dual Main Level Bedrooms

Ideal for guests, multigenerational living, or a private office.

English Cottage Architecture

Generous square footage designed for both everyday comfort and elevated entertaining.

Upstairs Retreats & Generous Outdoor Living

Additional bedrooms and flexible areas provide separation and privacy while outdoor spaces designed for quiet mornings and relaxed evenings.

Home Facts

The Arlo is thoughtfully paired with Lot 10 to allow its scale and presence to be fully realized. Within Still Hollow, homes are curated to fit the land—creating a community where architecture, nature, and lifestyle come together seamlessly.

  • Plan Name: The Arlo
  • Living Area: 3,775 sq. ft.
  • Bedrooms: 4
  • Bathrooms: 3
  • Style: English Cottage
  • Levels: 2
  • Width: 56′ 4″
  • Depth: 81′ 6″
  • Primary Suite: Main Level
  • Secondary Bedroom: Main Level
  • Garage: Side Entry
  • Foundation: Crawl Space (modifiable)
  • First Floor: 2,314 sq. ft.
  • Second Floor: 1,461 sq. ft.
  • Garage: 929 sq. ft.
  • Porches: 264 sq. ft.

Discover The Arlo at Still Hollow

Connect with our team to explore pricing, homesite pairings, and next steps toward building The Arlo within Still Hollow.

Explore Still Hollow

Lot 15
Tooltip text
Lorem ipsum dolor sit amet consectetur adipisicing elit. Debitis vero maxime beatae fugiat, aspernatur quia.
Lot 16
Tooltip text
Lorem ipsum dolor sit amet consectetur adipisicing elit. Debitis vero maxime beatae fugiat, aspernatur quia.
Lot 2: 1.23 acres
Tooltip text
Lorem ipsum dolor sit amet consectetur adipisicing elit. Debitis vero maxime beatae fugiat, aspernatur quia.
Lot 10: .72 acres
Lot 1: .83 acres
Lot 3: 1.45 acres
Lot 2: 1.23 acres
Lot 4: .89 acres
Community Area
Future amenities and features are planned to include: • community gardens and greenhouse spaces • shared agricultural areas and produce co-op opportunities • walking and biking trails through preserved green corridors • gathering spaces for seasonal events and community harvests • thoughtfully maintained natural landscapes
Lot 5: 1.03 acres
Future Phase 2
Future Phase 2
31 Additional Homesites planned for Phase 2 of Still Hollow development.
Lot 6: .54 acres
Lot 7: .59 acres
Lot 9: .81 acres
Lot 12: 1.31 acres
Lot 13: 1.39 acres
Lot 11: 1.04 acres
Lot 14: .8 acres
Lot 15: 1.23 acres
Lot 16: 1.11 acres
Lot 18: .84 acres
Lot 20: .74 acres
Lot 21: .78 acres
Lot 22: .83 acres
The Julie
Expansive in scale yet composed in design, The Julie brings together Country French elegance, traditional form, and the warmth of English Arts & Crafts architecture. With 5,352 square feet across two levels—supported by a basement level—this residence is designed to offer both presence and livability, where each space is thoughtfully arranged to feel connected, intentional, and enduring. The main level is the defining feature of the home, offering over 3,900 square feet of living space anchored by a private primary suite and a secondary bedroom. This layout creates a natural balance between accessibility and flexibility, allowing for comfortable daily living while accommodating guests or extended use. Central living areas unfold with purpose, connecting kitchen, dining, and gathering spaces in a way that supports both openness and definition. Upstairs, additional bedrooms and living areas provide privacy and separation, while the basement level introduces further flexibility—ideal for recreation, storage, or extended living space that evolves over time. Together, these layers create a home that adapts seamlessly to both everyday life and larger gatherings. Architecturally, The Julie reflects a refined European influence—balanced proportions, detailed craftsmanship, and a cohesive presence that feels both established and inviting. A side-entry garage preserves the integrity of the front elevation, while expansive porch spaces extend the home into its surroundings, creating a strong connection to the landscape.
Lot 23: .74 acres
Lot 8: .69 acres
Lot 19: .83 acres
The Caseview
Blending cottage character with modern livability, The Caseview is a home designed to feel both welcoming and highly functional—where thoughtful details and flexible spaces come together to support everyday life. With 3,823 square feet of finished living space across two levels, plus an expansive unfinished basement, this residence is crafted for both present comfort and future potential. At the heart of the home, a vaulted great room creates a sense of openness and light, anchored by a gas fireplace and seamlessly connected to the kitchen and dining areas. The gourmet kitchen is designed for both gathering and efficiency, featuring a U-shaped layout, large island, peninsula seating, and a butler’s pantry for added storage and organization. The primary suite is positioned as a true retreat, complete with dual walk-in closets, a spa-like bath, and direct access to a screened-in porch—creating a private connection to the outdoors. Additional bedrooms are thoughtfully placed for comfort and privacy, while upstairs introduces a flexible bonus space, an additional bedroom with en suite bath, and dedicated areas for work or recreation. Outdoor living is fully integrated, with both screened and open deck spaces extending the home into its surroundings—ideal for entertaining or quiet evenings overlooking a private backyard. Practical elements such as a mudroom entry from the attached two-car garage and a nearby laundry room ensure the home functions as seamlessly as it feels. Below, a 2,574 square foot unfinished basement—already plumbed for a kitchen and two bathrooms—offers significant opportunity for future expansion, whether for extended living, recreation, or a fully independent suite.
Lot 17: .91 acres