The Stacy - 5 Bedroom Agrihood Home Plan

A refined blend of Country French charm and transitional livability. Offering 3,343 square feet, five bedrooms, and expansive covered porches, The Stacy is designed for flexibility, comfort, and connection to the outdoors.

Main Level

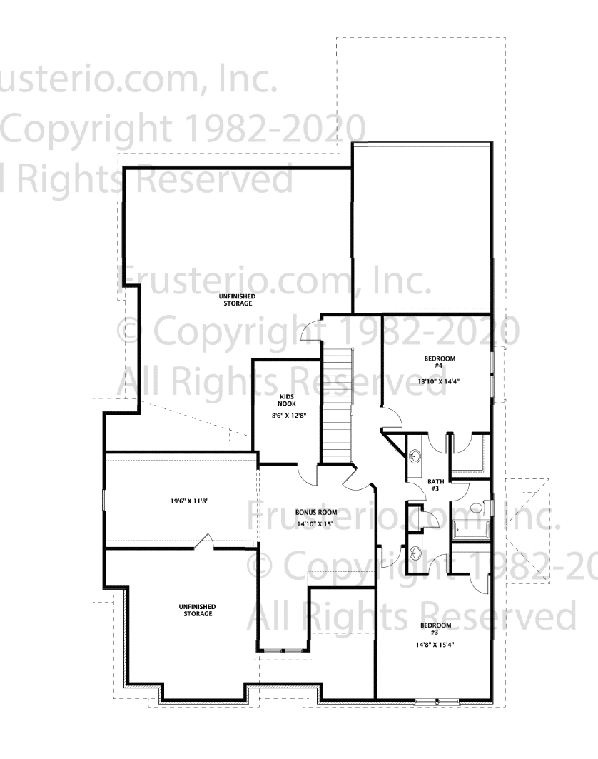
Second Level

Timeless Character, Thoughtfully Composed

The Stacy is designed to feel both welcoming and refined—drawing from the warmth of Country French architecture while embracing a clean, transitional layout. The result is a home that balances tradition with modern livability.

With both a primary suite and secondary bedroom on the main level, the layout offers flexibility for evolving lifestyles. Upstairs, additional bedrooms and baths provide generous space while maintaining privacy and separation.

Dual Main Level Bedrooms

Ideal for guests, multigenerational living, or a private office. Designed to accommodate growing families or hosting with ease.

English Cottage Architecture

A blend of warmth, elegance, and clean interior flow.

Upstairs Retreats & Generous Outdoor Living

Additional bedrooms and flexible areas provide separation and privacy with nearly 700 sq. ft. of outdoor living space.

Home Facts

The Stacy is thoughtfully paired with Lot 1 to allow its scale and presence to be fully realized. Within Still Hollow, homes are curated to fit the land—creating a community where architecture, nature, and lifestyle come together seamlessly.

  • Plan Name: The Stacy
  • Living Area: 3,343 sq. ft.
  • Bedrooms: 5
  • Bathrooms: 4
  • Style: Country French / Transitional
  • Levels: 2
  • Width: 37′ 8″
  • Depth: 90′ 8″
  • Primary Suite: Main Level
  • Secondary Bedroom: Main Level
  • Garage: Detached
  • Foundation: Crawl Space (modifiable)
  • First Floor: 2,001 sq. ft.
  • Second Floor: 1,342 sq. ft.
  • Covered Porches: 697 sq. ft.

Discover The Stacy at Still Hollow

Connect with our team to explore pricing, homesite pairings, and next steps toward building The Stacy within Still Hollow.

Explore Still Hollow

Lot 15
Tooltip text
Lorem ipsum dolor sit amet consectetur adipisicing elit. Debitis vero maxime beatae fugiat, aspernatur quia.
Lot 16
Tooltip text
Lorem ipsum dolor sit amet consectetur adipisicing elit. Debitis vero maxime beatae fugiat, aspernatur quia.
Lot 2: 1.23 acres
Tooltip text
Lorem ipsum dolor sit amet consectetur adipisicing elit. Debitis vero maxime beatae fugiat, aspernatur quia.
Lot 10: .72 acres
Lot 1: .83 acres
Lot 3: 1.45 acres
Lot 2: 1.23 acres
Lot 4: .89 acres
Community Area
Future amenities and features are planned to include: • community gardens and greenhouse spaces • shared agricultural areas and produce co-op opportunities • walking and biking trails through preserved green corridors • gathering spaces for seasonal events and community harvests • thoughtfully maintained natural landscapes
Future Phase 2
Future Phase 2
31 Additional Homesites planned for Phase 2 of Still Hollow development.
Lot 6: .54 acres
Lot 9: .81 acres
Lot 12: 1.31 acres
Lot 13: 1.39 acres
Lot 11: 1.04 acres
Lot 14: .8 acres
Lot 16: 1.11 acres
Lot 18: .84 acres
Lot 20: .74 acres
Lot 23: .74 acres
Lot 8: .69 acres
Lot 17: .91 acres
Lot 15: 1.23 acres
Lot 22: .83 acres
The Julie
Expansive in scale yet composed in design, The Julie brings together Country French elegance, traditional form, and the warmth of English Arts & Crafts architecture. With 5,352 square feet across two levels—supported by a basement level—this residence is designed to offer both presence and livability, where each space is thoughtfully arranged to feel connected, intentional, and enduring. The main level is the defining feature of the home, offering over 3,900 square feet of living space anchored by a private primary suite and a secondary bedroom. This layout creates a natural balance between accessibility and flexibility, allowing for comfortable daily living while accommodating guests or extended use. Central living areas unfold with purpose, connecting kitchen, dining, and gathering spaces in a way that supports both openness and definition. Upstairs, additional bedrooms and living areas provide privacy and separation, while the basement level introduces further flexibility—ideal for recreation, storage, or extended living space that evolves over time. Together, these layers create a home that adapts seamlessly to both everyday life and larger gatherings. Architecturally, The Julie reflects a refined European influence—balanced proportions, detailed craftsmanship, and a cohesive presence that feels both established and inviting. A side-entry garage preserves the integrity of the front elevation, while expansive porch spaces extend the home into its surroundings, creating a strong connection to the landscape.
Lot 5: 1.03 acres
Lot 21: .78 acres
Lot 19: .83 acres
Lot 7: .59 acres