The Ginny - 4 Bedroom Agrihood Home Plan

A European-inspired home designed for connection, comfort, and outdoor living with  3,669 square feet with dual main-level bedrooms, a detached garage, and expansive porch living.

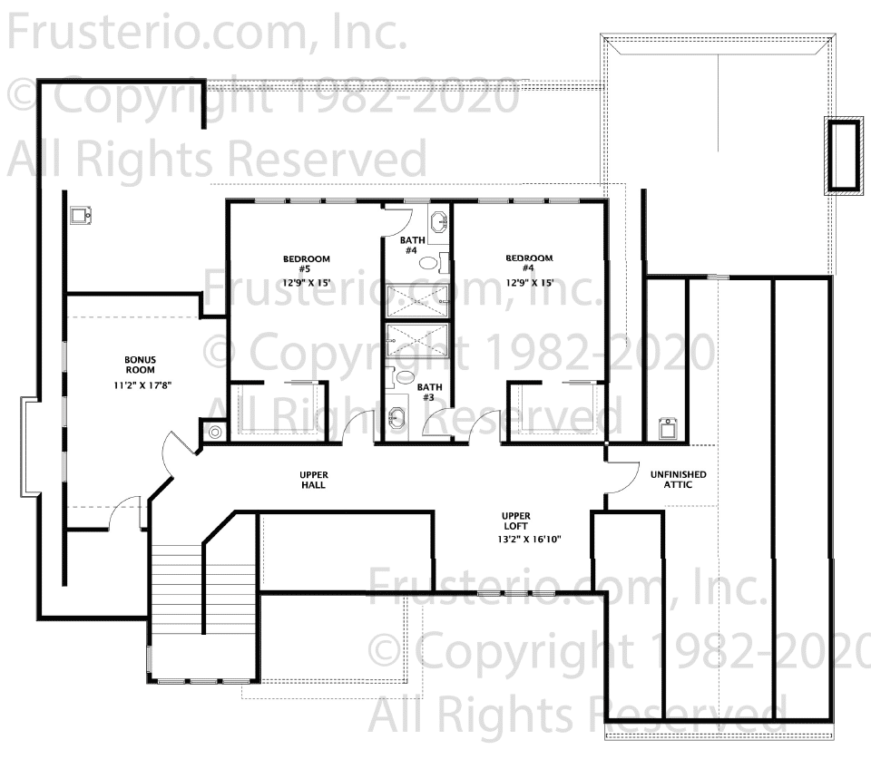
Main Level

Second Level

Designed for Connection and Flow

The Ginny is designed to feel open and welcoming—where indoor and outdoor spaces work together to create a home that lives comfortably day to day. Inspired by European architectural traditions, the layout emphasizes both connection and privacy in equal measure.

Dual Main-Level Bedrooms

Flexible for hosting guests, additional workspace, or multigenerational living.

Country French + European Influence

Timeless proportions and refined detailing with detached garage configuration to enhance architectural character and site layout.

Expansive Porch Spaces

951 sq. ft. of covered outdoor space extending the home with open core living spaces.

Home Facts

The Ginny is thoughtfully paired with Lot 23 to ensure its layout, scale, and architectural character feel naturally integrated into the landscape—supporting a lifestyle centered around connection, simplicity, and intentional living.

  • Plan Name: The Ginny
  • Living Area: 3,669 sq. ft.
  • Bedrooms: 4
  • Bathrooms: 4.5
  • Style: Country French / European
  • Levels: 2
  • Width: 69′ 4″
  • Depth: 58′ 2″
  • Primary Suite: Main Level
  • Secondary Bedroom: Main Level
  • Garage: Detached
  • Foundation: Crawl Space
  • First Floor: 2,437 sq. ft.
  • Second Floor: 1,232 sq. ft.
  • Porches: 951 sq. ft.

Discover The Ginny at Still Hollow

Connect with our team to explore pricing, homesite pairings, and next steps toward building The Ginny within Still Hollow.

Explore Still Hollow

Lot 15
Tooltip text
Lorem ipsum dolor sit amet consectetur adipisicing elit. Debitis vero maxime beatae fugiat, aspernatur quia.
Lot 16
Tooltip text
Lorem ipsum dolor sit amet consectetur adipisicing elit. Debitis vero maxime beatae fugiat, aspernatur quia.
Lot 2: 1.23 acres
Tooltip text
Lorem ipsum dolor sit amet consectetur adipisicing elit. Debitis vero maxime beatae fugiat, aspernatur quia.
Lot 10: .72 acres
Lot 1: .83 acres
Lot 3: 1.45 acres
Lot 2: 1.23 acres
Lot 4: .89 acres
Community Area
Future amenities and features are planned to include: • community gardens and greenhouse spaces • shared agricultural areas and produce co-op opportunities • walking and biking trails through preserved green corridors • gathering spaces for seasonal events and community harvests • thoughtfully maintained natural landscapes
Lot 5: 1.03 acres
Future Phase 2
Future Phase 2
31 Additional Homesites planned for Phase 2 of Still Hollow development.
Lot 6: .54 acres
Lot 7: .59 acres
Lot 9: .81 acres
Lot 12: 1.31 acres
Lot 13: 1.39 acres
Lot 11: 1.04 acres
Lot 14: .8 acres
Lot 15: 1.23 acres
Lot 16: 1.11 acres
Lot 18: .84 acres
Lot 20: .74 acres
Lot 21: .78 acres
Lot 22: .83 acres
The Julie
Expansive in scale yet composed in design, The Julie brings together Country French elegance, traditional form, and the warmth of English Arts & Crafts architecture. With 5,352 square feet across two levels—supported by a basement level—this residence is designed to offer both presence and livability, where each space is thoughtfully arranged to feel connected, intentional, and enduring. The main level is the defining feature of the home, offering over 3,900 square feet of living space anchored by a private primary suite and a secondary bedroom. This layout creates a natural balance between accessibility and flexibility, allowing for comfortable daily living while accommodating guests or extended use. Central living areas unfold with purpose, connecting kitchen, dining, and gathering spaces in a way that supports both openness and definition. Upstairs, additional bedrooms and living areas provide privacy and separation, while the basement level introduces further flexibility—ideal for recreation, storage, or extended living space that evolves over time. Together, these layers create a home that adapts seamlessly to both everyday life and larger gatherings. Architecturally, The Julie reflects a refined European influence—balanced proportions, detailed craftsmanship, and a cohesive presence that feels both established and inviting. A side-entry garage preserves the integrity of the front elevation, while expansive porch spaces extend the home into its surroundings, creating a strong connection to the landscape.
Lot 23: .74 acres
Lot 8: .69 acres
Lot 19: .83 acres
The Caseview
Blending cottage character with modern livability, The Caseview is a home designed to feel both welcoming and highly functional—where thoughtful details and flexible spaces come together to support everyday life. With 3,823 square feet of finished living space across two levels, plus an expansive unfinished basement, this residence is crafted for both present comfort and future potential. At the heart of the home, a vaulted great room creates a sense of openness and light, anchored by a gas fireplace and seamlessly connected to the kitchen and dining areas. The gourmet kitchen is designed for both gathering and efficiency, featuring a U-shaped layout, large island, peninsula seating, and a butler’s pantry for added storage and organization. The primary suite is positioned as a true retreat, complete with dual walk-in closets, a spa-like bath, and direct access to a screened-in porch—creating a private connection to the outdoors. Additional bedrooms are thoughtfully placed for comfort and privacy, while upstairs introduces a flexible bonus space, an additional bedroom with en suite bath, and dedicated areas for work or recreation. Outdoor living is fully integrated, with both screened and open deck spaces extending the home into its surroundings—ideal for entertaining or quiet evenings overlooking a private backyard. Practical elements such as a mudroom entry from the attached two-car garage and a nearby laundry room ensure the home functions as seamlessly as it feels. Below, a 2,574 square foot unfinished basement—already plumbed for a kitchen and two bathrooms—offers significant opportunity for future expansion, whether for extended living, recreation, or a fully independent suite.
Lot 17: .91 acres