The Emily - 4 Bedroom Agrihood Home Plan

A Modern Tudor home designed for balance, character, and everyday living featuring 2,619 square feet with a main-level primary suite, flexible upper level, and basement living potential.

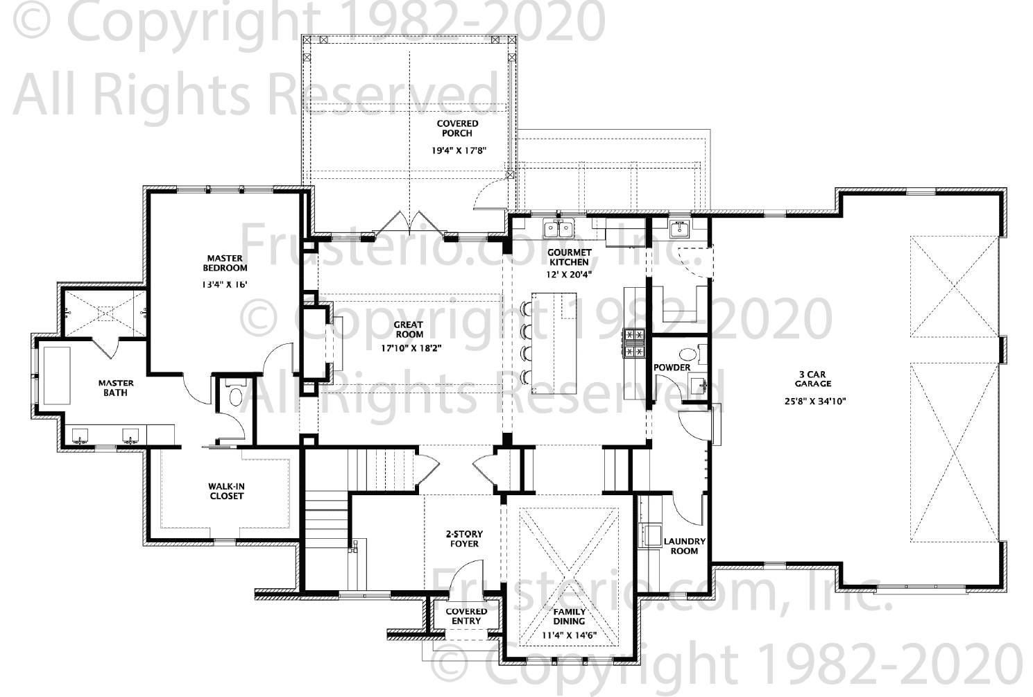
Main Level

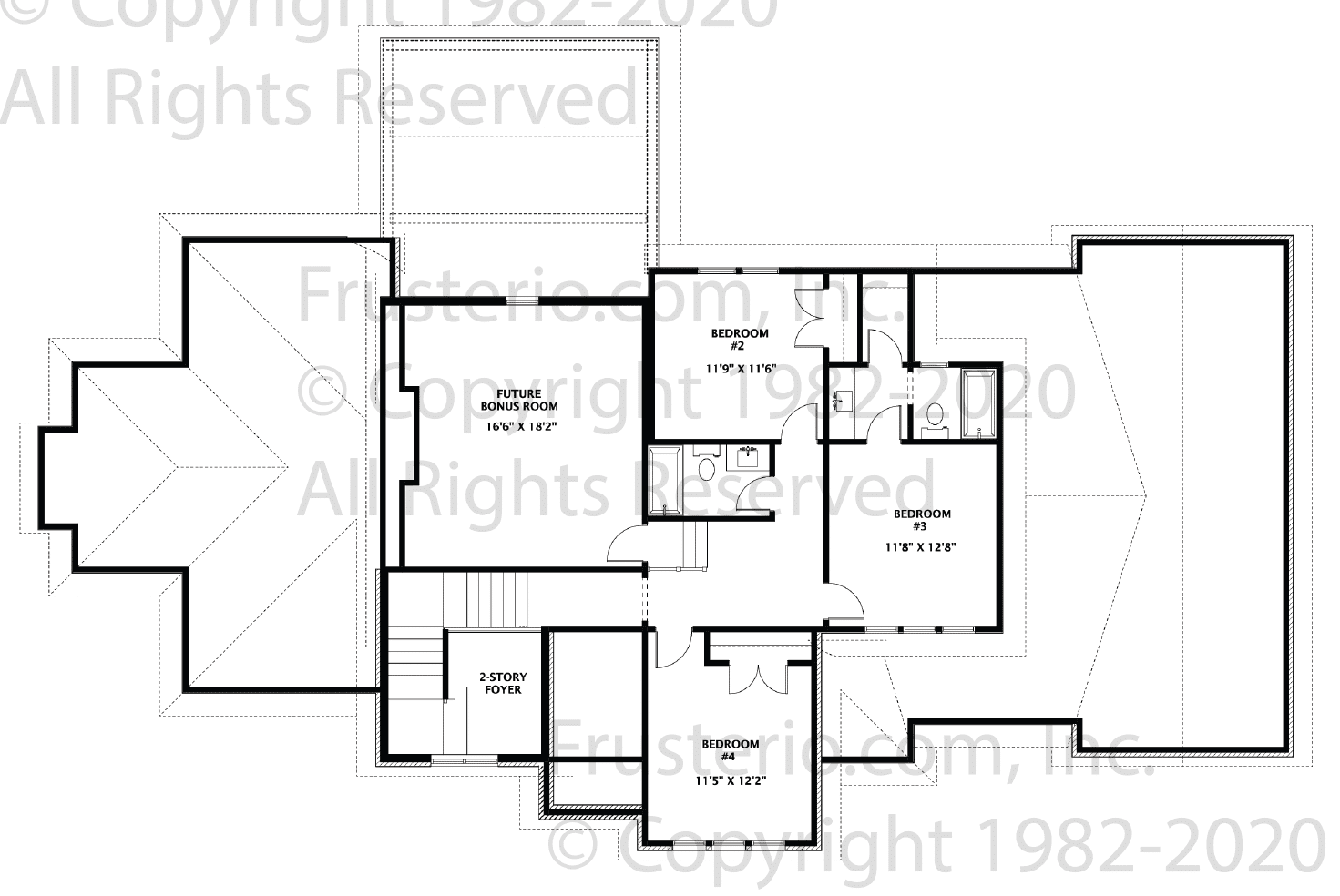
Second Level

Curated for Life at Still Hollow

The Emily is designed to bring together architectural character and everyday function—where clean Tudor influences meet a layout that feels natural and livable. Each space is arranged to support both connection and comfort, creating a home that adapts easily over time.

Main-Level Primary Suite

A private and accessible retreat with well-distributed space across both floors.

Modern Tudor + Arts & Crafts Design

Clean interpretation of classic English architecture with a side-entry garage to preserve the home’s front facing architectural presence.

Integrated Porch Living

Structured layout that supports both gathering and comfort with an outdoor space designed to complement daily living.

Home Facts

The Emily is thoughtfully paired with Lot 5 to ensure its layout, scale, and architectural character feel naturally integrated into the landscape—supporting a lifestyle centered around connection, simplicity, and intentional living.

  • Plan Name: The Emily
  • Living Area: 2,919 sq. ft.
  • Bedrooms: 4
  • Bathrooms: 3.5
  • Style: Modern Tudor / Traditional / English Arts & Crafts
  • Levels: 2 + Basement
  • Width: 86′ 6″
  • Depth: 56′ 0″
  • Primary Suite: Main Level
  • Secondary Bedrooms: Upper Level
  • Garage: Side Entry, 888 sq. ft.
  • Foundation: Basement
  • First Floor: 1,853 sq. ft.
  • Second Floor: 766 sq. ft.
  • Porches: 368 sq. ft.

Discover The Emily at Still Hollow

Connect with our team to explore pricing, homesite pairings, and next steps toward building The Emily within Still Hollow.

Explore Still Hollow

Lot 15
Tooltip text
Lorem ipsum dolor sit amet consectetur adipisicing elit. Debitis vero maxime beatae fugiat, aspernatur quia.
Lot 16
Tooltip text
Lorem ipsum dolor sit amet consectetur adipisicing elit. Debitis vero maxime beatae fugiat, aspernatur quia.
Lot 2: 1.23 acres
Tooltip text
Lorem ipsum dolor sit amet consectetur adipisicing elit. Debitis vero maxime beatae fugiat, aspernatur quia.
Lot 10: .72 acres
Lot 1: .83 acres
Lot 3: 1.45 acres
Lot 2: 1.23 acres
Lot 4: .89 acres
Community Area
Future amenities and features are planned to include: • community gardens and greenhouse spaces • shared agricultural areas and produce co-op opportunities • walking and biking trails through preserved green corridors • gathering spaces for seasonal events and community harvests • thoughtfully maintained natural landscapes
Future Phase 2
Future Phase 2
31 Additional Homesites planned for Phase 2 of Still Hollow development.
Lot 6: .54 acres
Lot 9: .81 acres
Lot 12: 1.31 acres
Lot 13: 1.39 acres
Lot 11: 1.04 acres
Lot 14: .8 acres
Lot 16: 1.11 acres
Lot 18: .84 acres
Lot 20: .74 acres
Lot 23: .74 acres
Lot 8: .69 acres
Lot 17: .91 acres
Lot 15: 1.23 acres
Lot 22: .83 acres
The Julie
Expansive in scale yet composed in design, The Julie brings together Country French elegance, traditional form, and the warmth of English Arts & Crafts architecture. With 5,352 square feet across two levels—supported by a basement level—this residence is designed to offer both presence and livability, where each space is thoughtfully arranged to feel connected, intentional, and enduring. The main level is the defining feature of the home, offering over 3,900 square feet of living space anchored by a private primary suite and a secondary bedroom. This layout creates a natural balance between accessibility and flexibility, allowing for comfortable daily living while accommodating guests or extended use. Central living areas unfold with purpose, connecting kitchen, dining, and gathering spaces in a way that supports both openness and definition. Upstairs, additional bedrooms and living areas provide privacy and separation, while the basement level introduces further flexibility—ideal for recreation, storage, or extended living space that evolves over time. Together, these layers create a home that adapts seamlessly to both everyday life and larger gatherings. Architecturally, The Julie reflects a refined European influence—balanced proportions, detailed craftsmanship, and a cohesive presence that feels both established and inviting. A side-entry garage preserves the integrity of the front elevation, while expansive porch spaces extend the home into its surroundings, creating a strong connection to the landscape.
Lot 5: 1.03 acres
Lot 21: .78 acres
Lot 19: .83 acres
Lot 7: .59 acres