The Max - 5 Bedroom Agrihood Home Plan

A modern home defined by clarity, balance, and refined living that features 4,238 square feet with an upstairs primary suite, open living spaces, and a clean architectural presence.

Main Level

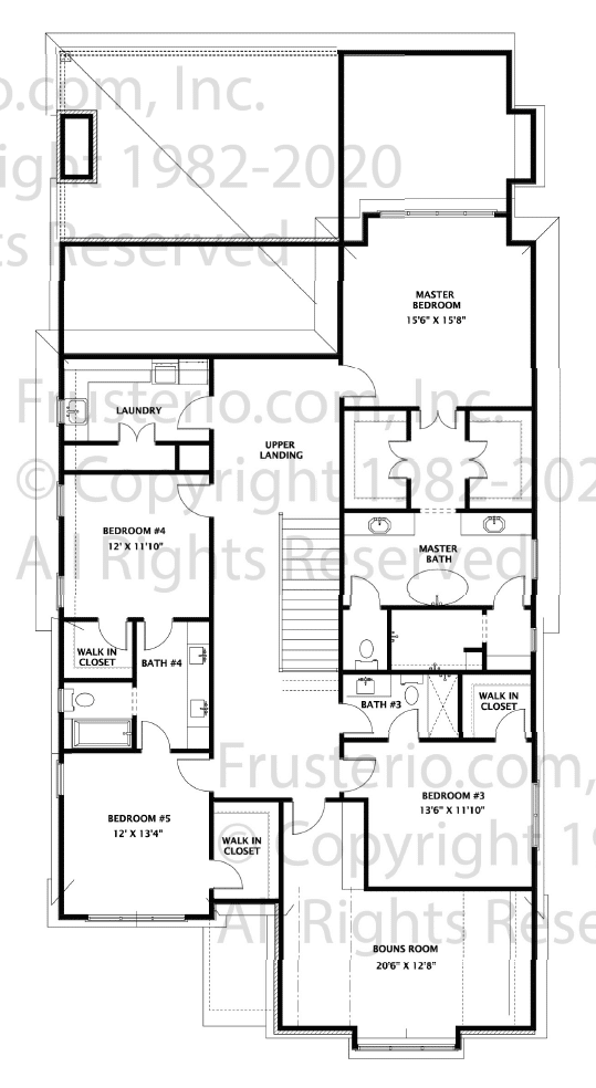
Second Level

Modern Living, Thoughtfully Designed

The Max is designed to feel open and efficient—where clean lines and intentional layout create a home that lives comfortably day to day. The balance between openness and structure allows each space to feel connected without losing definition.

Upstairs Primary Suite

A private retreat positioned above the main living spaces, with balanced distribution of living space across both floors.

Modern Transitional Design

Clean lines, simple forms, and refined detailing.

Integrated Porch Living

462 sq. ft. of outdoor space extending the home with the kitchen, dining, and living areas designed for flow and connection.

Home Facts

The Max is thoughtfully paired with Lot 18 to ensure its layout, scale, and architectural character feel naturally integrated into the landscape—supporting a lifestyle centered around connection, simplicity, and intentional living.

  • Plan Name: The Max
  • Living Area: 4,238 sq. ft.
  • Bedrooms: 5
  • Bathrooms: 4.5
  • Style: Modern / Transitional
  • Levels: 2
  • Width: 39′ 2″
  • Depth: 80′ 8″
  • Primary Suite: Second Level
  • Secondary Bedroom: Main Level
  • Garage: Front Entry, 491 sq. ft.
  • Foundation: Slab
  • First Floor: 2,094 sq. ft.
  • Second Floor: 2,144 sq. ft.
  • Porch: 462 sq. ft.

Discover The Max at Still Hollow

Connect with our team to explore pricing, homesite pairings, and next steps toward building The Max within Still Hollow.

Explore Still Hollow

Lot 15
Tooltip text
Lorem ipsum dolor sit amet consectetur adipisicing elit. Debitis vero maxime beatae fugiat, aspernatur quia.
Lot 16
Tooltip text
Lorem ipsum dolor sit amet consectetur adipisicing elit. Debitis vero maxime beatae fugiat, aspernatur quia.
Lot 2: 1.23 acres
Tooltip text
Lorem ipsum dolor sit amet consectetur adipisicing elit. Debitis vero maxime beatae fugiat, aspernatur quia.
Lot 10: .72 acres
Lot 1: .83 acres
Lot 3: 1.45 acres
Lot 2: 1.23 acres
Lot 4: .89 acres
Community Area
Future amenities and features are planned to include: • community gardens and greenhouse spaces • shared agricultural areas and produce co-op opportunities • walking and biking trails through preserved green corridors • gathering spaces for seasonal events and community harvests • thoughtfully maintained natural landscapes
Future Phase 2
Future Phase 2
31 Additional Homesites planned for Phase 2 of Still Hollow development.
Lot 6: .54 acres
Lot 9: .81 acres
Lot 12: 1.31 acres
Lot 13: 1.39 acres
Lot 11: 1.04 acres
Lot 14: .8 acres
Lot 16: 1.11 acres
Lot 18: .84 acres
Lot 20: .74 acres
Lot 23: .74 acres
Lot 8: .69 acres
Lot 17: .91 acres
Lot 15: 1.23 acres
Lot 22: .83 acres
The Julie
Expansive in scale yet composed in design, The Julie brings together Country French elegance, traditional form, and the warmth of English Arts & Crafts architecture. With 5,352 square feet across two levels—supported by a basement level—this residence is designed to offer both presence and livability, where each space is thoughtfully arranged to feel connected, intentional, and enduring. The main level is the defining feature of the home, offering over 3,900 square feet of living space anchored by a private primary suite and a secondary bedroom. This layout creates a natural balance between accessibility and flexibility, allowing for comfortable daily living while accommodating guests or extended use. Central living areas unfold with purpose, connecting kitchen, dining, and gathering spaces in a way that supports both openness and definition. Upstairs, additional bedrooms and living areas provide privacy and separation, while the basement level introduces further flexibility—ideal for recreation, storage, or extended living space that evolves over time. Together, these layers create a home that adapts seamlessly to both everyday life and larger gatherings. Architecturally, The Julie reflects a refined European influence—balanced proportions, detailed craftsmanship, and a cohesive presence that feels both established and inviting. A side-entry garage preserves the integrity of the front elevation, while expansive porch spaces extend the home into its surroundings, creating a strong connection to the landscape.
Lot 5: 1.03 acres
Lot 21: .78 acres
Lot 19: .83 acres
Lot 7: .59 acres