The Hartley - 4 Bedroom Agrihood Home Plan

A modern farmhouse designed for connection, openness, and everyday living featuring 2,909 square feet of thoughtfully arranged space with a wide footprint, breezeway connection, and inviting outdoor living.

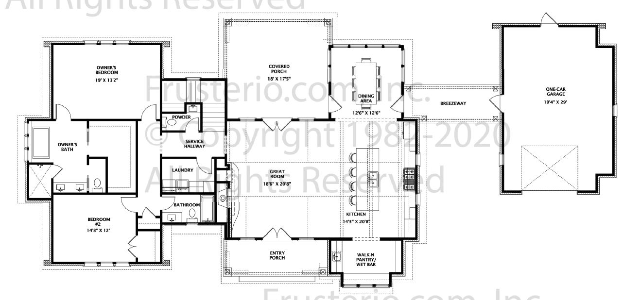
Main Level

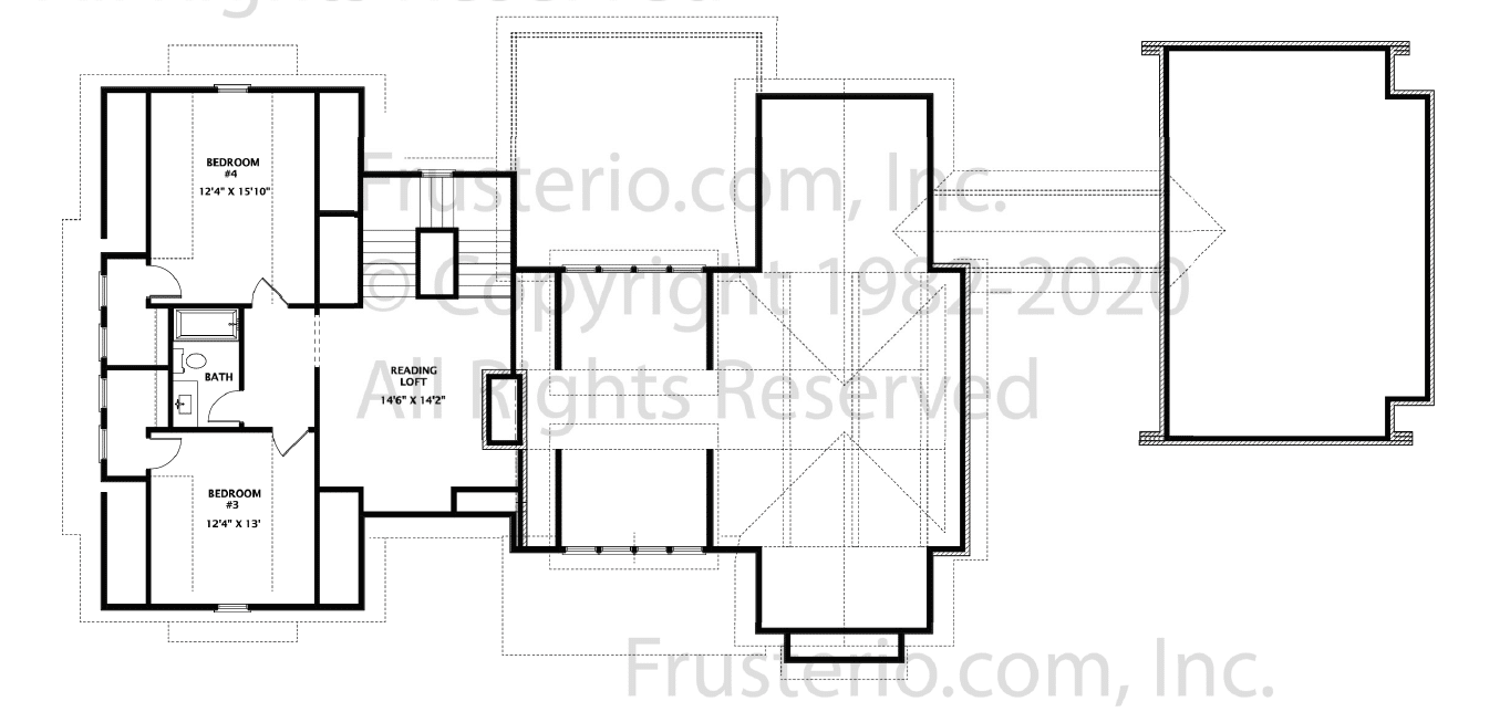
Second Level

Wide, Open, and Intentionally Designed

The Hartley is designed around openness and flow—where the home’s wide footprint allows for expansive living spaces that feel connected yet comfortable. Rooted in farmhouse tradition, the layout encourages movement between indoors and outdoors, creating a home that feels both functional and inviting.

Dual Main Level Suites

Expansive square footage designed for hosting or multigenerational living designed for both everyday life and flexible living.

Farmhouse Architecture

Classic farmhouse layout that enhances both function and character.

Wide Footprint Design

Creates open, connected living spaces with natural flow.

Home Facts

The Hartley is thoughtfully paired with Lot 3 to allow its width and layout to fully come to life—creating a setting where the home feels naturally integrated into the land and the broader Still Hollow community.

  • Plan Name: The Hartley
  • Living Area: 2,909 sq. ft.
  • Bedrooms: 4
  • Bathrooms: 3.5
  • Style: Farmhouse
  • Levels: 2
  • Width: 104′ 4″
  • Depth: 47′ 8″
  • Primary Suite: Main Level
  • Secondary Bedroom: Main Level
  • Garage: Detached
  • Foundation: Slab (modifiable)
  • First Floor: 2,121 sq. ft.
  • Second Floor: 788 sq. ft.
  • Porches: 447 sq. ft.
  • Garage: 573 sq. ft.
  • Breezeway: 108 sq. ft.

Discover The Hartley at Still Hollow

Connect with our team to explore pricing, homesite pairings, and next steps toward building The Hartley within Still Hollow.

Explore Still Hollow

Lot 15
Tooltip text
Lorem ipsum dolor sit amet consectetur adipisicing elit. Debitis vero maxime beatae fugiat, aspernatur quia.
Lot 16
Tooltip text
Lorem ipsum dolor sit amet consectetur adipisicing elit. Debitis vero maxime beatae fugiat, aspernatur quia.
Lot 2: 1.23 acres
Tooltip text
Lorem ipsum dolor sit amet consectetur adipisicing elit. Debitis vero maxime beatae fugiat, aspernatur quia.
Lot 10: .72 acres
Lot 1: .83 acres
Lot 3: 1.45 acres
Lot 2: 1.23 acres
Lot 4: .89 acres
Community Area
Future amenities and features are planned to include: • community gardens and greenhouse spaces • shared agricultural areas and produce co-op opportunities • walking and biking trails through preserved green corridors • gathering spaces for seasonal events and community harvests • thoughtfully maintained natural landscapes
Lot 5: 1.03 acres
Future Phase 2
Future Phase 2
31 Additional Homesites planned for Phase 2 of Still Hollow development.
Lot 6: .54 acres
Lot 7: .59 acres
Lot 9: .81 acres
Lot 12: 1.31 acres
Lot 13: 1.39 acres
Lot 11: 1.04 acres
Lot 14: .8 acres
Lot 15: 1.23 acres
Lot 16: 1.11 acres
Lot 18: .84 acres
Lot 20: .74 acres
Lot 21: .78 acres
Lot 22: .83 acres
The Julie
Expansive in scale yet composed in design, The Julie brings together Country French elegance, traditional form, and the warmth of English Arts & Crafts architecture. With 5,352 square feet across two levels—supported by a basement level—this residence is designed to offer both presence and livability, where each space is thoughtfully arranged to feel connected, intentional, and enduring. The main level is the defining feature of the home, offering over 3,900 square feet of living space anchored by a private primary suite and a secondary bedroom. This layout creates a natural balance between accessibility and flexibility, allowing for comfortable daily living while accommodating guests or extended use. Central living areas unfold with purpose, connecting kitchen, dining, and gathering spaces in a way that supports both openness and definition. Upstairs, additional bedrooms and living areas provide privacy and separation, while the basement level introduces further flexibility—ideal for recreation, storage, or extended living space that evolves over time. Together, these layers create a home that adapts seamlessly to both everyday life and larger gatherings. Architecturally, The Julie reflects a refined European influence—balanced proportions, detailed craftsmanship, and a cohesive presence that feels both established and inviting. A side-entry garage preserves the integrity of the front elevation, while expansive porch spaces extend the home into its surroundings, creating a strong connection to the landscape.
Lot 23: .74 acres
Lot 8: .69 acres
Lot 19: .83 acres
The Caseview
Blending cottage character with modern livability, The Caseview is a home designed to feel both welcoming and highly functional—where thoughtful details and flexible spaces come together to support everyday life. With 3,823 square feet of finished living space across two levels, plus an expansive unfinished basement, this residence is crafted for both present comfort and future potential. At the heart of the home, a vaulted great room creates a sense of openness and light, anchored by a gas fireplace and seamlessly connected to the kitchen and dining areas. The gourmet kitchen is designed for both gathering and efficiency, featuring a U-shaped layout, large island, peninsula seating, and a butler’s pantry for added storage and organization. The primary suite is positioned as a true retreat, complete with dual walk-in closets, a spa-like bath, and direct access to a screened-in porch—creating a private connection to the outdoors. Additional bedrooms are thoughtfully placed for comfort and privacy, while upstairs introduces a flexible bonus space, an additional bedroom with en suite bath, and dedicated areas for work or recreation. Outdoor living is fully integrated, with both screened and open deck spaces extending the home into its surroundings—ideal for entertaining or quiet evenings overlooking a private backyard. Practical elements such as a mudroom entry from the attached two-car garage and a nearby laundry room ensure the home functions as seamlessly as it feels. Below, a 2,574 square foot unfinished basement—already plumbed for a kitchen and two bathrooms—offers significant opportunity for future expansion, whether for extended living, recreation, or a fully independent suite.
Lot 17: .91 acres